留住手艺,让手艺人获得尊重,
从而传承手艺的价值体系
Toretain crafts and respect craftsmen is highlighted, aiming to inherit the value system of crafts
留住手艺,让手艺人获得尊重,
从而传承手艺的价值体系
Toretain crafts and respect craftsmen is highlighted, aiming to inherit the value system of crafts
7月21日上午,贵州安顺西秀区七眼桥镇云山屯广场上,伴随一场远古承传的屯堡地戏,2025年“贵州城乡遗产保护志愿者屯堡工作营”开营仪式拉开帷幕。来自法国和国内各行各业的24名志愿者将开启为期两周的屯堡明代技艺古民宅——“牟家院子”的日常维护保养工作,用双手为这座古建筑拂去尘埃,续写传承故事。
开营仪式
——————
开营仪式现场
屯堡地戏“三英战吕布”
二十多位来自北京、上海、云南、成都、贵阳、安顺等多地的领导及嘉宾出席了本次开营仪式,贵州风景旅游发展有限公司党总支副书记、总经理曹静对云山屯的保护与发展进行了热情介绍,上海阮仪三城市遗产保护基金会丁枫秘书长则强调了上海阮仪三城市遗产保护基金会的使命,呼吁大家共同守护文化遗产。贵州省土木工程学会秘书长王尧燕从学术角度分享了对屯堡建筑遗产保护的专业见解,为活动增添了科学与前瞻性的视角。
屯堡文化是明朝初年江淮一带的汉人在贵州腹地“屯田戍边”遗留下的一种特殊文化现象。屯堡民居依据黔中喀斯特地貌的山地秩序,形成独特的承台式石木穿排结构。作为目前中国保存最为完好的屯堡文化村寨之一,云山屯保存了明、清、民国、现代各个时期的历史建筑。“外观上修旧如故,内部进行适居化改造,并尽量保留各个历史时期的修缮改造痕迹——留下可视化的历史痕迹。”屯堡工作营发起人、建筑师越剑介绍,屯堡工作营以“修旧如故·以存其真”的原则来进行适应性修复老房,突出原真性、可读性、整体性。本期工作营,志愿者们将在乡村匠师的指导下,参与明代古建筑“牟家院子”日常保养维护,包括场地的清理、屋顶检修、地面的维护、后院的整理等工作。本期工作营特别增加了建筑测绘环节,帮助志愿者进一步了解学习屯堡传统建筑知识。此外,还会穿插安排当地非物质文化遗产手工艺和地戏的学习、屯堡聚落游学及乡村音乐会等。
开营仪式现场,来自中国各地的21名志愿者,法国的3名志愿者们身着统一服装,向三位本地乡村匠师行拜师礼。下午,志愿者们在云山屯遗产保护工作站参加了培训课堂,系统学习了贵州乡村遗产保护的相关知识和技能,为接下来的修缮工作做准备。晚上,大家共同观看了独立艺术电影《脸谱》,在光影交织中进一步领略了屯堡文化的深厚内涵。
贵州城乡遗产保护志愿者工作营已开展11年,在贵州完成了12处历史建筑的修复传习工作。期间,来自中国、法国、希腊、英国、挪威、比利时等国家的311名志愿者,其中81位外国人中,法国人有69位;这些老建筑在保留自身风格的同时,“变身”为村民咖啡屋、屯堡工作营研学基地、艺术家工作室、建筑遗产保护工作站等,以鲜活姿态重新融入人们的日常生活,成为游客青睐的热门打卡点。此次工作营的开营不只是一次古建筑的日常保养维护,更是一场跨越国界与时空的薪火传递。
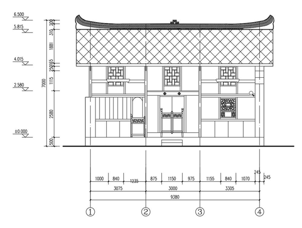
牟家院子修复工程
地点| 贵州省安顺市西秀区七眼桥镇云山屯结构| 石木结构
牟家院子鸟瞰
牟家院子修复前
——————


设计方案展示 design scheme demonstration
1)牟家院子修复图纸
——————

——————






3)牟家院子修复后
——————

美丽的云山屯
——————



学习参观
——————


雕刻面具
——————

